詳細介紹
結構特點 執行標準
球閥調節機構主要技術參數 |
|
注:1.根據現場使用條件,可配用防爆型執行機構。 |
| 2.可為用戶提供GB、ANSI、JPI、JIS、DIN等國外法蘭標準產品,其法蘭距按用戶需要確定。 角行程電動執行機構主要技術參數 |
|
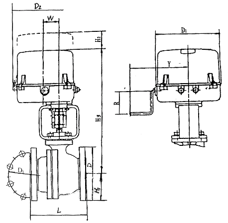
| 外形尺寸 | PN16電動O型切斷球閥外形尺寸 mm |
|
PN64電動O型切斷球閥外形尺寸 mm |
|
| ||||||||||||||||||||||||||||||||||||||||||||||||||||||||||||||||||||||||||||||||||||||||||||||||||||||||||||||||||||||||||||||||||||||||||||||||||||||||||||||||||||||||||||||||||||||||||||||||||||||||||||||||||||||||||||||||||||||||||||||||||||||||||||||||||||||||||||||||||||||||||||||||||||||||||||||||||||||||||||||||||||||||||||||||||||||||||||||||||||||||||||||||||||||||||||||||||
溫馨提示:“電動O型球閥/電動O型切斷球閥”所有文字、數據、圖片均只適用于參考。
如需與實物相吻合的性能參數、結構尺寸參數等詳情請來電來函索取。
電話:021-68103333 傳真:021-51686322
如需與實物相吻合的性能參數、結構尺寸參數等詳情請來電來函索取。
電話:021-68103333 傳真:021-51686322

軟密封蝶閥視頻介紹




掃一掃關注我們